Bedroom
2, 3, 4 BHK
Possession
Nov-2029
Area
3.5 Acres
Status
New Launch
About Sobha Aurum
At Sector 36, Greater Noida, Sobha Aurum, the most recent high-end residential development by the esteemed Sobha Limited, is a standard for opulent living. This recently opened project offers a modern, comfortable, and elegant lifestyle by fusing thoughtful architecture, strong construction quality, and beautiful design. Sobha Aurum presents a fantastic opportunity for both investors and homebuyers due to its prime location, first-rate amenities, and roomy floor plans.
The 2, 3, and 4 BHK apartments in this upscale residential community, which spans 3.46 acres, range in size from 434 to 1523 square feet. Because of the three-side open plot design, the apartments are carefully planned to offer lots of natural light, cross ventilation, and privacy. With just two residential towers and 80% open green space, Sobha Aurum guarantees a spacious and calm setting that encourages peace and well-being.
Sobha Aurum is a demonstration of accuracy, forethought, and superior quality. Every element reflects Sobha's reputation for unwavering quality, from the aluminum-framed sliding windows to the stone countertops in bathrooms.
Top Features and Amenities
Sobha Aurum's elegant fusion of luxury and practicality is intended to enhance urban living. Important facilities consist of:
- Landscape Garden: Beautifully designed green areas that provide peace and quiet are called landscape gardens.
- Gated Community: Gated community with 24-hour security and monitoring
- Fire Fighting Systems: Up-to-date and effective safety measures
- Internal Street Lights and Roads: Safe and convenient routes that are well-maintained and well-lit
- Lifts of Reputed Make: Reputable manufacturers' high-speed elevators for smooth vertical mobility
- Waste Management & Garbage Disposal System: Environmentally friendly waste management and garbage disposal systems are in place.
- Car Parking: There are plenty of open and covered parking spots for both locals and guests.
Design and Specifications
The interior design of Sobha Aurum combines modern aesthetics with practicality. Each apartment is furnished with:
- The dining room, living room, and bedrooms all have vitrified tile flooring.
- For a smooth and polished appearance on walls and ceilings, use Matt Emulsion Paint.
- Moisture-resistant false ceilings for kitchens and bathrooms
- Superior Joinery featuring aluminum-framed windows and wooden doors
- Designer landscaping in gardens and common areas
- High-quality fixtures that guarantee longevity and beauty in bathrooms and kitchens
Strategic Location Advantage
Sobha Aurum, which is situated in Sector 36, Greater Noida, is in a prime location in a neighborhood that is growing quickly. The project provides great connectivity and is close to centers for healthcare, education, shopping, and recreation:
- Jaypee Public School – 2.2 km
- Jaypee Greens Golf Course – 2.6 km
- Greater Noida Stadium – 3.6 km
- Grand Venice Mall – 3.9 km
- Noida-Greater Noida Expressway – 4.2 km
- Oh!Max Dream World Theme Park – 4.9 km
- Kailash Hospital – 5.2 km
- Gautam Buddha University – 7.3 km
- Crowne Plaza Hotel – 11.1 km
- Indira Gandhi International Airport – 52.3 km
It will be easy and quick to commute to Delhi, Noida, and the surrounding areas thanks to the upcoming metro connectivity and access to major highways.
Why Choose Sobha Aurum?
- 3-Side Open Apartments: Better light, ventilation, and privacy are guaranteed in three-side open apartments.
- Low-Density Living: Take advantage of more space, tranquility, and exclusivity with only two towers and 420 units.
- Excellent Location: Situated near schools, hospitals, and commercial centers, Sector 36 is one of Greater Noida's most desirable neighborhoods.
- Outstanding Capital Appreciation: Sobha Aurum presents a strong return on investment due to the expansion of Greater Noida's infrastructure and growing demand.
- Sobha Assurance: Known for its dedication to quality, openness, and timely delivery, Sobha Assurance was created by Sobha Limited.
Locality Snapshot: Sector 36, Greater Noida
In Greater Noida, Sector 36 is quickly becoming a real estate hotspot. The area has excellent ratings for infrastructure, lifestyle, cleanliness, and connectivity. The neighborhood is praised by locals for its well-kept roads, accessibility to public transportation, close proximity to reputable hospitals and schools, and green surroundings. Families and professionals looking for a balanced lifestyle favor it.
About Sobha Limited
One of the most respected and reliable real estate developers in India is Sobha Limited. With decades of experience, Sobha is renowned for its dedication to providing top-notch living environments that blend practicality, style, and lasting value. They have contracts for residential, commercial, and other projects in major Indian cities.
Who Should Buy at Sobha Aurum?
- End users seeking a permanent residence in a tidy, environmentally friendly, and conveniently located area.
- Investors and NRIs looking to profit from Greater Noida's growing demand and price growth.
- Those looking for luxury who appreciate room, peace, and contemporary conveniences.
- First-time purchasers seeking a high-end lifestyle supported by a reputable company.
Conclusion
Sobha Aurum is a lifestyle destination where luxury and tranquility coexist and modernity and nature coexist. It is more than just a housing development. This project meets all your needs, whether you're an investor looking for a worthwhile asset or a homebuyer searching for their ideal residence. In the centre of Greater Noida, Sobha Aurum is undoubtedly a fantastic opportunity thanks to its affordable prices, clever layouts, and reputable Sobha brand.
Book Your Dream Home Today!
Take a look at Sobha Aurum's brochure, arrange a site visit, and start the process of acquiring a piece of contemporary luxury. There isn't much inventory on hand. Ask now!
Highlights Sobha Aurum
- Unit Configurations: 2 BHK (768 – 908 sq. ft.): ?1.8 – ?2 Cr | 3 BHK (979 – 1228 sq. ft.): ?2.25 – ?2.62 Cr | 4 BHK (1400 – 1523 sq. ft.): ?3.3 Cr
- Completion Date: April 2030
- Construction Status: New Launch
- Total Towers: 2
- Floors Per Tower: 35
- Total Units: 420
- Open Area: 80%
- RERA Registered: Yes
Price List Sobha Aurum
| Bedrooms | Sizes | Price |
|---|---|---|
| 1 BHK | 739 Sq.ft. | 14000 Per Sq.Ft. |
| 2 BHK | 1270 Sq.ft. | 14000 Per Sq.Ft. |
| 2 BHK | 1361 Sq.ft. | 14000 Per Sq.Ft. |
| 3 BHK | 1570 Sq.ft. | 14000 Per Sq.Ft. |
| 3 BHK | 1805 Sq.ft. | 14000 Per Sq.Ft. |
| 3 BHK | 1846 Sq.ft. | 14000 Per Sq.Ft. |
| 3 BHK | 1880 Sq.ft. | 14000 Per Sq.Ft. |
| 3 BHK | 1873 Sq.ft. | 14000 Per Sq.Ft. |
| 3 BHK | 1901 Sq.ft. | 14000 Per Sq.Ft. |
| 4 BHK | 2285 Sq.ft. | 14000 Per Sq.Ft. |
| 4 BHK | 2306 Sq.ft. | 14000 Per Sq.Ft. |
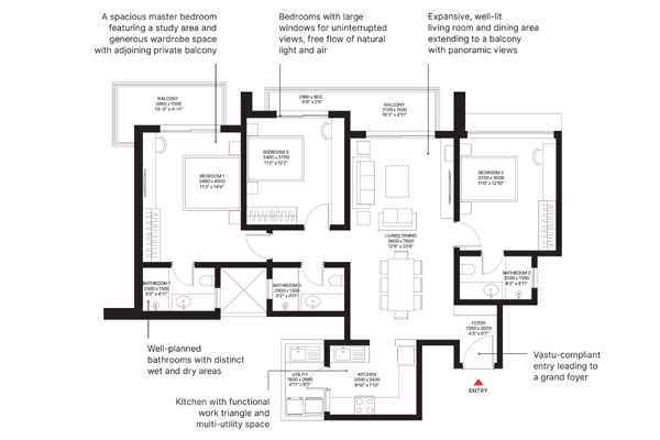
FLoor Plan
TYPE A1 (TOWER - 1) 1 BED RESIDENCE SALEABLE AREA - 68.68 SQ. M. (739.28 SQ. FT.) CARPET AREA - 40.30 SQ. M. (433.79 SQ. FT.)
TYPE B1 (TOWER - 1) 2 BED RESIDENCE SALEABLE AREA - 118.00 SQ. M. (1270.19 SQ. FT.) CARPET AREA - 71.33 SQ. M. (767.80 SQ. FT.)
TYPE C1 (TOWER - 1) 2 BED RESIDENCE SALEABLE AREA - 126.47 SQ. M. (1361.32 SQ. FT.) CARPET AREA - 77.37 SQ. M. (832.81 SQ. FT.)
TYPE D1 (TOWER - 1) 3 BED LUXE RESIDENCE SALEABLE AREA - 145.95 SQ. M. (1570.97 SQ. FT.) CARPET AREA - 90.97 SQ. M. (979.20 SQ. FT.)
TYPE E1 (TOWER - 1) 3 BED GRANDE RESIDENCE SALEABLE AREA - 167.74 SQ. M. (1805.56 SQ. FT.) CARPET AREA - 100.31 SQ. M. (1079.74 SQ. FT.)
TYPE F1 (TOWER - 2) 3 BED GRANDE RESIDENCE SALEABLE AREA - 171.53 SQ. M. (1846.32 SQ. FT.) CARPET AREA - 100.53 SQ. M. (1082.10 SQ. FT.)
TYPE G1 (TOWER - 2) 3 BED GRANDE RESIDENCE SALEABLE AREA - 174.73 SQ. M. (1880.85 SQ. FT.) CARPET AREA - 103.01 SQ. M. (1108.80 SQ. FT.)
TYPE H1 (TOWER - 2) 3 BED GRANDE RESIDENCE SALEABLE AREA - 174.06 SQ. M. (1873.54 SQ. FT.) CARPET AREA - 102.58 SQ. M. (1104.17 SQ. FT.)
TYPE K1 (TOWER - 2) 3 BED GRANDE RESIDENCE WITH PRIVATE TERRACE SALEABLE AREA - 176.67 SQ. M. (1901.73 SQ. FT.) CARPET AREA - 103.01 SQ. M. (1108.80 SQ. FT.)
TYPE J1 (TOWER - 2) 4 BED RESIDENCE SALEABLE AREA - 212.33 SQ. M. (2285.50 SQ. FT.) CARPET AREA - 130.0 SQ. M. (1399.54 SQ. FT.)
Property Amenities
Property Location
- Airport : 40 Km
- Hospital : 2 Km
- Railway : 10 km
- Atm : 1 Km
- School : 1 km
- City Center : 2 Km
FAQs Sobha Aurum
Sobha Aurum is a luxury residential high-rise project by Sobha Limited, located in Sector 36, Greater Noida. The project offers 1, 2, 3, and 4 BHK premium apartments with world-class amenities and excellent connectivity to major infrastructure like Noida Expressway, Yamuna Expressway, and the upcoming Jewar International Airport.
Sobha Aurum offers a variety of unit configurations, including 1 BHK (approx. 739 sq.ft), 2 BHK (1,200–1,361 sq.ft), 3 BHK (1,500–1,901 sq.ft), and 4 BHK (2,200–2,306 sq.ft), catering to both small and large families seeking luxury living.
The RERA registration number of Sobha Aurum is UPRERAPRJ361748 /06/2025, ensuring transparency, legality, and adherence to government regulations.
The BSP at Sobha Aurum is approximately ₹14,000 per sq.ft for super built-up area. Final pricing depends on the unit size, floor level, and premium charges like view or location preferences.
Sobha Aurum is spread across approximately 3.45 acres of prime land, offering two iconic high-rise towers with open green spaces, podium landscaping, and over 60 lifestyle amenities.




Sobha Aurum